寝屋川市・旭区・神戸市垂水区の不動産売却|スマイシア不動産販売 > 枚方市印田町の物件
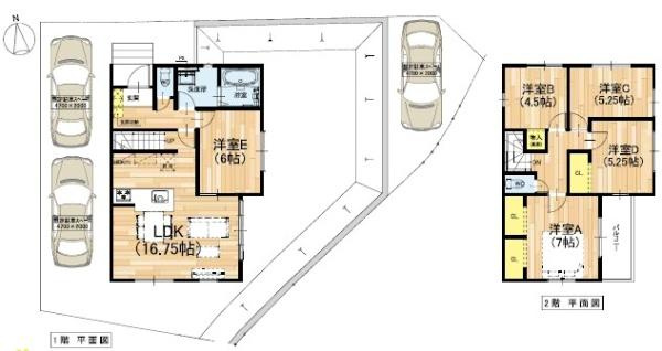
◆令和7年11月新築 5LDK
◆角地に付き、陽当り・通風良好♪
◆駐車3台可能










(※元利均等方式 金利5.00%まで ※返済年数5~50年まで入力できます)
(※ボーナスは年2回で計算しています。1000万円まで入力できます)
(※物件購入時、その他諸費用が発生する場合がございます)
| 所在地 | 大阪府枚方市印田町 | ||
|---|---|---|---|
| 交通 | |||
| 間取り/詳細 | 5LDK/ | 建物面積(坪数) | 102.67㎡(31.05坪) |
| 価格 | 4,398万円 | ||
| 駐車場/月額料金 | 有(3台)/- | ||
| 土地の敷金/保証金 | -/- | 借地料/借地期間 | -/- |
| 土地権利 | 所有権 | 土地面積(坪数) | 244.58㎡(73.98坪) |
| 傾斜地部分面積 | - | 路地状敷地 | - |
| 私道負担面積/セットバック | 35.20㎡/- | 高圧線下面積 | - |
| 地目/地勢 | 宅地/- | 接道状況 | 二方(北 私道 4.0m)(南東 4.0m) |
| 建ぺい率/容積率 | 50%/100% | 用途地域 | 第一種低層住居専用 |
| 都市計画 | 市街化区域 | 種別/構造 | 新築一戸建/木造 |
| 階建 | 2階建 | 築年月(築年数) | 2025年 11月 (新築) |
| 総区画数/販売区画数 | -/- | 向き | 北 |
| 現況 | 完成済み | その他の法令上の制限 | 高度地区 |
| 取引態様/引渡時期 | 仲介/即時 | 建築確認番号 | - |
| 物件番号 | 100472543 | 取引条件の有効期限 | 2026年02月22日 |
| 設備条件 |
|
||
| 取扱会社 |
|
||
| QRコード |
このQRコードを読み取ることで、スマホでも物件情報を確認できます。 |
||
※地図上に表示される物件の位置は付近住所に所在することを表すものであり、実際の物件所在地とは異なる場合がございます。
枚方市印田町の新築一戸建に関するこだわり条件から探す
枚方市以外の市区町村から探す
枚方市の町名から探す